重庆春风印月·星空小镇示范区景观设计 l 基准方中
-
项目名称:春风印月·星空小镇示范区
-
项目地点:重庆市涪陵区北山新城
-
项目规模:2482.80㎡
-
设计公司:
-
委托方:当代置业(中国)有限公司
-
建成时间:2020.07
-
图片来源:基准方中品牌中心、雪尔空间、三棱镜、东木木
EXPLOR THE INFINITE DISTANCE
ARHCITECTURE | LANDSCAPE | INTERIOR
春风印月·星空小镇位于重庆涪陵北山之巅,场地远眺长江乌江,直接感受磅礴的江景气势。项目初始即定位为建筑、景观、室内一体化打造的目标,融合“山、水、天地、自然”几大要素,去边界化,回归场所本质,让空间和自然互为补充,唤起大家对环境的尊重,创造一个人与自然共情的体验场所。从艺术化重构自然的角度出发,根据场地的区位、高差、地势,组织变换场所的起承、收放、围合,使整体流线张弛有度,跌宕起伏,丰富使用者的参观体验感。
△ 城市美学系列视频(第13集)©JZFZ
场地的艺术化重构
THE ARTISTIC RECONSTRUCTION
「探索场地基因」
场地的精神性,在于场地的艺术化重构,塑造空间的戏剧性。挖掘场地原始的基因,探索建筑的在地性,创造无限的精神性。去边界化,尊重自然,回归场所本质,找寻原始基地的密码。
△ 项目周边环境
「有限中寻找无限的场所精神」
建筑像是一个巨大的装置,受技术、空间、时间、功能等各方面的客观限制,设计的过程就是一场与各种有限条件博弈的过程,设计策略是利用各种限制的要素,令设计成为一个利用有限寻求更多无限答案的过程。
原始场地存在诸多限制:首先,项目用地呈南高北低,西高东低之势,观江视野并不富余,如何让示范区与南侧城区和两江发生对话,成为示范区选址的首要条件。其次,片区交通资源有限,现有城市道路与项目用地将近240米的直线距离,可达性和昭示性成为项目的一大限制。第三,现状高差变化复杂且无序,场地内最大高差接近36米,对于设计的思考提出新的挑战。
△ 概念生成图
自然的抽象与互动
THE ABSTRACTION AND INTERACTION OF NATURE
我们如何利用限制,解决“人、建筑、自然”的冲突与矛盾,创造一个无限融合的共存关系是设计的重要起点。以体验的情绪递进,营造出具有层次变化的空间。立意上我们对当地山水人文的剖析与解读,从中挖掘了“山、水、天地、自然”四个突破点作为设计核心。将空间以山水画的原理来构图,山水雅韵与现代艺术相融合,以山水人文之情,筑现代美学之境。
△ 山水廊桥俯视
「凡尘之外的自然对话」
山和水,是场地最宝贵的自然资源。而设计所做的就是在这视野最佳的观景点,创造了一处人与山水情感连接的纽带。通过设计的空间、路径和情绪的带动,设计师希望创造的是精神层面的自然,是人们感知山与水时,思想的波澜和迸发。“星空廊桥”是场地与城市,建筑与自然,现在与未来之间的联系纽带,通过廊桥的延伸,看见无限远方。
△ 山水廊桥实景图
△ 展示中心半鸟瞰
「抽象写意的自然山水」
建筑整体造型融入周围环境,同时又将设计痕迹恰当的融入。以中国传统山水文化与美丽的自然万象为基础,抽象山、水、星空元素,传递高远、浩瀚、璀璨的场所气质,融通文脉,贯穿古今,让场域活性化并带给空间丰富的文化深度。前场景观通过抽象的水波纹理,让观者感受静谧流动的水文化。中心环道用现代的材料和抽象的手法,层层叠叠的台地景观紧扣重庆自然山地地貌。
△ 江景侧鸟瞰实景图
△ 建筑半鸟瞰实景图
△ 中心环道实景图
△ 入口景观实景图
「建筑与场地融合共生」
建筑师面对场所,从单纯的“流动”概念出发,发展出建筑的各个基本元素:形体、空间、墙面、照明。中心景观呼应"天圆地方"哲学观,随着空间动线的视觉引导,在下沉空间的创造性转变中,山水演化的黄金螺旋,划分多层次立体交融空间,去除规整的直线,营造空间的沉浸式互动体验,建构“可观、可游、可赏”的丰富空间体验。
△ 中心环道鸟瞰实景图
「当童心在自然中绽放」
前场的室外公园邀请人们自由地漫步其间。回归自然,提供奔跑、休憩的空间,也可以举办室外音乐节等活动。星际乐园为孩子们创造了一个在大自然中快乐玩耍的天地,在空间布局以及设计愿景上也是希望展现到星空小镇的未来体验的可能性。
△ 前场星际乐园鸟瞰实景图
基于对不同年龄段儿童的心理、行为特征分析,我们将星际乐园分为大、中、低龄儿童三个不同的主题板块,设置相应的活动内容,以一条悬空栈桥串联各大板块,主题设施热气球是本节点的地标性设施,作为特色活动场所的同时也是极具标示性的打卡点。孩童的天真在这里聚集、乘着满载梦想的热气球、便能开启探寻星球的逐梦之旅。
△ 前场儿童乐园实景图
“萌酷”IP 植入与情景化故事体验,从《爱丽丝梦游仙境》的故事中获取灵感,将其中“三月兔”作为本项目IP形象,我们希望这个项目在涪陵有一个非常重要的记忆点,而不仅仅描述自然环境。“三月兔”贯穿着整个项目,从主入口到公共开放的公园,再到核心展示区,通过IP化的雕塑,与人特别是儿童的距离拉近,唤起人们对生态居住及尊重自然的共情的体验。
△ “三月兔”实景图
当场所的边界消失
WHEN THE BOUNDARIES DISAPPEARS
无边界的空间发挥着它的无限可能,同时潜移默化地塑造着一种平等、共享的人文精神。整个项目谦逊而包容,人们可以在室内与室外之间穿梭,亲近自然、感受艺术。透明的落地玻璃、山水天地、延伸向自然的山水廊桥,都消隐在这片自然之中,空间的灵活性使它可以适应各种需求,不断发展变化。
「景观建筑室内一体化打造」
在有限的场地中如何将空间体验放大,设计将建筑景观室内的边界进行弱化,建筑的幕墙和景观围合有机融合,通过拱的语言将室外中心坡道与室内书吧串联,打造“星空之眼”,同时将观者视线继续向外延伸,再次与外部的天地、山水、自然进行连结,统一打造一体化的空间情绪递进。
△ 中心环道实景图
△ 星空之眼实景图
「光影之间的流动变幻」
中心环道随着视角转变而发生变化,材质以及自然光洒下的光影带来的不同的视觉效果。光即是阴影,它的多源头可能性,它的透明、半透明与不透明性,它的反射与折射性,会交织地定义与重新定义空间。
△ 水波纹GRC幕墙细节
△ 主入口实景图
△ 峡谷隧道实景图
△ 入口景观实景图
材质与建造
MATERIALS & CONSTRUCTION
不同的材料选型在场景里传递着不同的情绪体验,石材的师法自然、混泥土的流动冥想、玻璃的朦胧静谧、金属的刚毅坚韧,木材的婉约温润。在阴天居多的重庆,选择能够创造更多光影变化的材质,比如折形U玻幕墙,保留U玻温婉细腻的气质同时强化层次与质感;抽象水波纹的GRC幕墙同样强化了灵动的山水韵味。
△ GRC幕墙细节
△ U型玻璃幕墙细节
△ (左)GRC幕墙细节(右)铝板幕墙细节
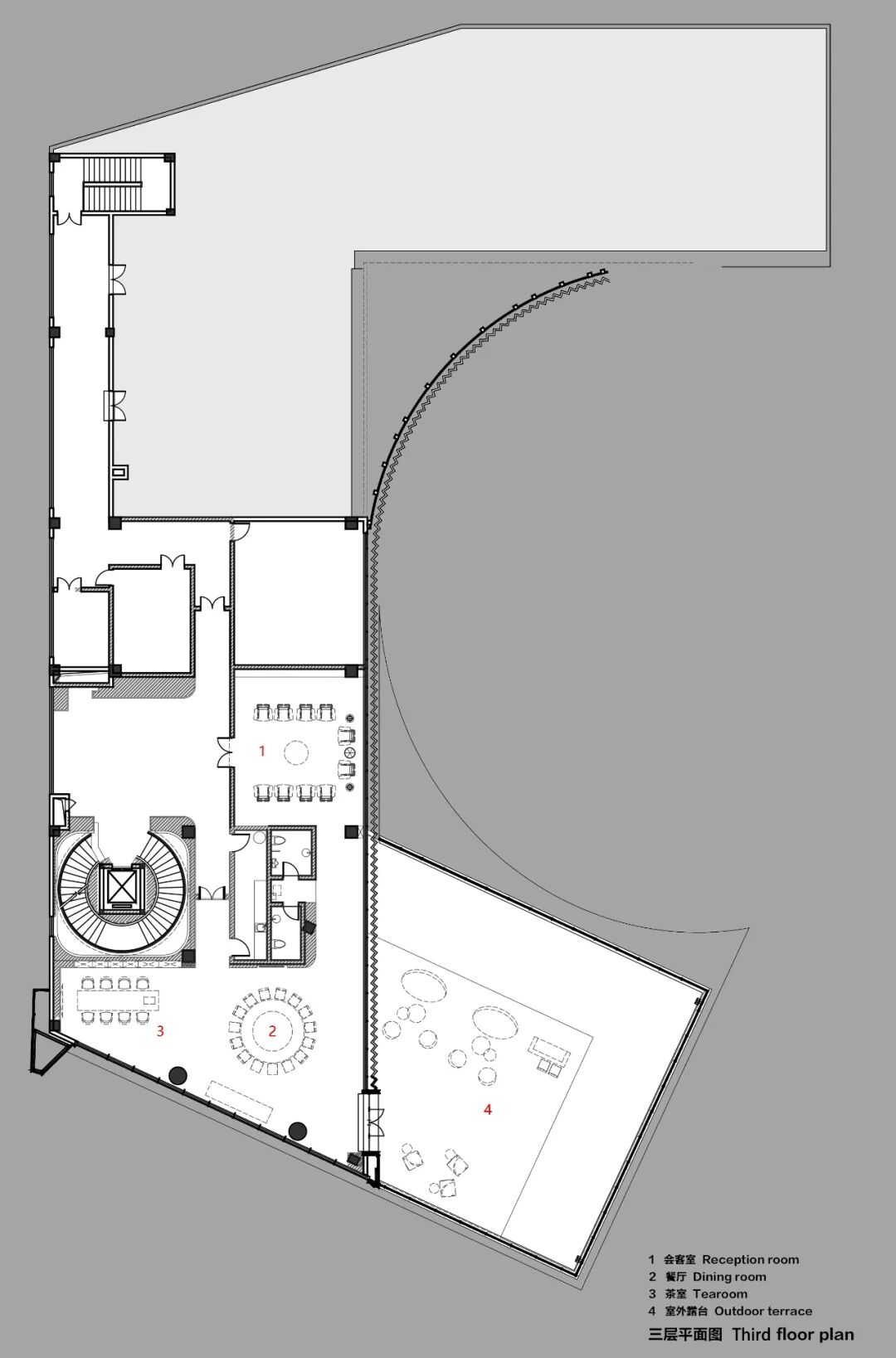
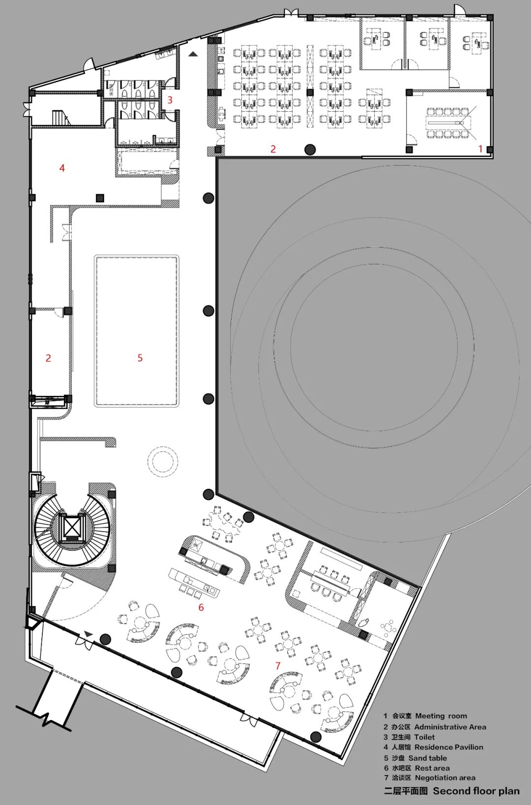
技术图纸
项目信息
建设时间:2020.03—2020.07
主持建筑师:周世春(建筑) 欧阳爽(景观)
施工图:四川洲宇建筑设计有限公司
版权声明:本文由作者于景观中国网发布,仅代表作者观点,不代表景观中国网立场。如转载、链接、转贴或以其它方式使用本稿,需注明“文章来源:景观中国网”。如有侵权,请与发布者或我们联系。
投稿邮箱:info@landscape.cn
项目咨询:18510568018(微信同号)




